티스토리 뷰
목차
<라체르보 푸르지오 써밋>이 드디어 9월 2일 분양을 시작합니다. 라체르보 푸르지오 써밋 아파트는 '서울 성동구 행당동 행당7구역' 재개발 정비 사업으로 정비 중인 단지입니다. 분양 모집공고는 8월 23일 게재되니 아래 정보를 눈여겨 보세요!
라체르보 푸르지오 써밋 아파트는 후분양으로 진행되며, 958세대 중 138세대가 일반분양 예정에 있습니다. 대우건설이 서울 성동구 행당1동 128번지에 건설하고, 왕십리역 역세권이라는 큰 이점이 있습니다.
라체르보 푸르지오 써밋 기본 정보
라체르보푸르지오 써밋은 지하 4층에서 지상 35층, 75개 동, 총 958가구로 구성됩니다. 2호선·5호선·수인분당선·경의중앙선 환승역인 왕십리역 인근에 위치하여 많은 관심을 받고 있습니다.
📌 위치: 서울특별시 성동구 행당동 128-1번지
📌 규모: 7개동, 지하 4층~지상 35층
📌 세대: 총 958세대
📌 주차: 2,289대 (세대 당 1.3대)
📌 타입
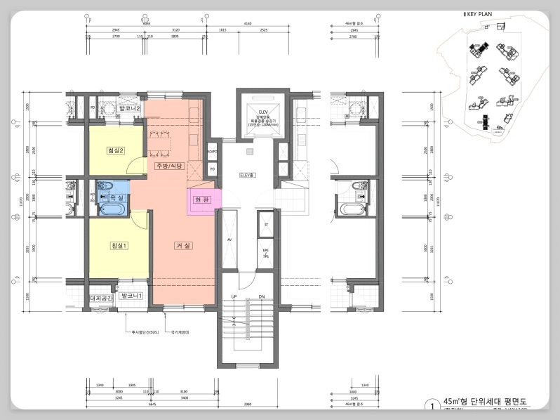
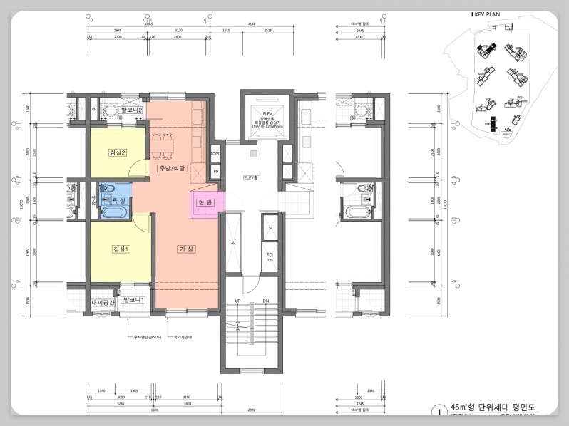
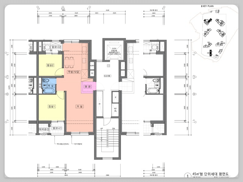
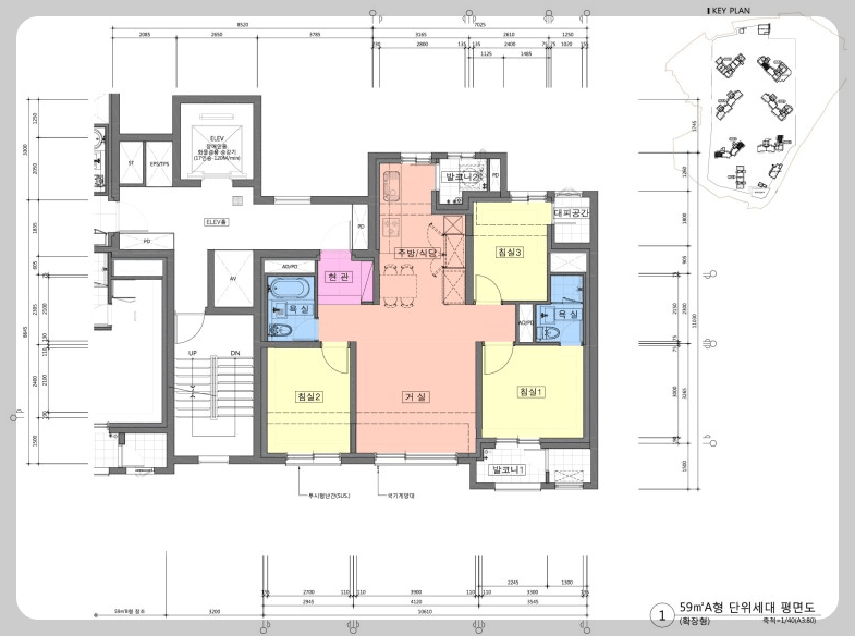
- 45㎡ 93가구
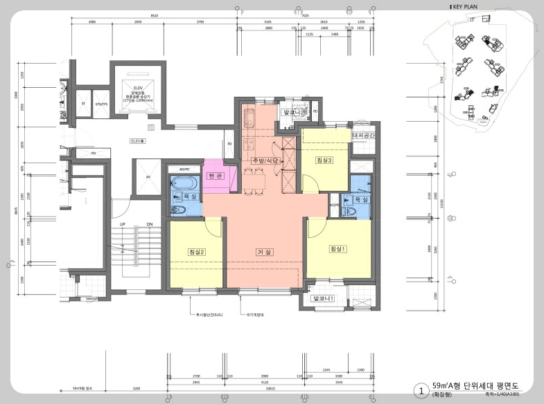
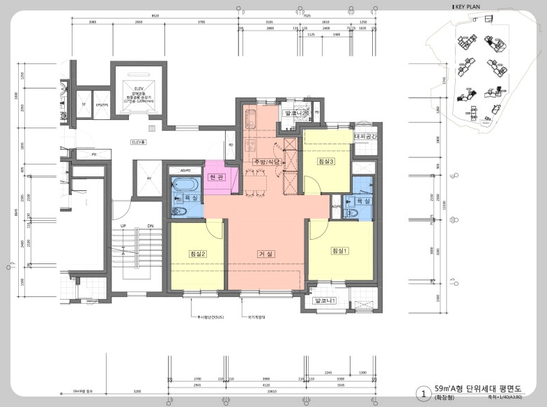
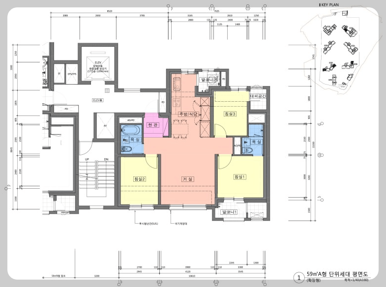
- 59 ㎡A 3가구
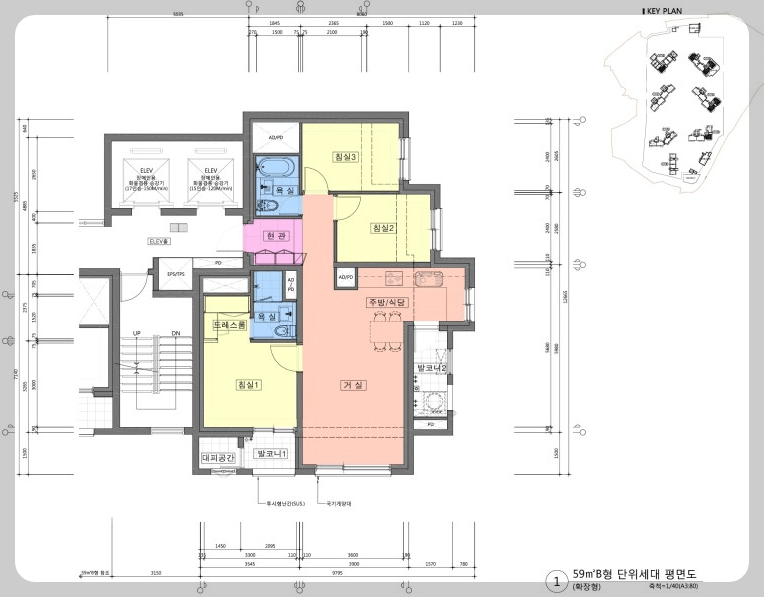
- 59 ㎡B 2가구
- 59 ㎡D 3가구
- 64 ㎡ 37가구
📌 분양일: 2024년 9월
📌 입주일: 2025년 7월 예정
라체르보 푸르지오 써밋 위치 지도
라체르보 푸르지오 써밋 입지환경
✅ 라체르보 푸르지오 써밋이 더욱 관심받는 이유는 2호선·5호선·수인분당선·경의중앙선 환승이 가능한 쿼드러플 왕십리역까지 도보 6~10분 내로 갈 수 있다는 점 때문입니다.



✅ 또한 차로 10분이면 내부순환로를 탈 수 있으며, 왕십리역은 2028년 GTX-C 노선, 2026년 동북선 개통도 예정에 있는 만큼 동서울 교통의 중심으로 올라서고 있습니다.



✅ 라체르보 푸르지오 써밋의 교육환경도 아주 좋습니다. 단지 입주민은 단지 바로 앞에 있는 행당초등학교로 배정을 받으며, 무학고·무학여고·무학중이 도보권으로 단지 바로 옆 아주 가까이에 위치합니다.



✅ 도심 입지에서 가장 중요하다고 할 수 있는 것이 바로 병원이죠. 도보 10분 내 한양대학교 병원이 있으며, 왕십리역 근처로 성동구청, 젊음의 거리, 다운타운에비뉴 등 생활편의시설이 밀집되어 있습니다.. 인근에는 중랑천 산책로가 있어서 녹지 환경도 좋다고 할 수 있겠습니다.



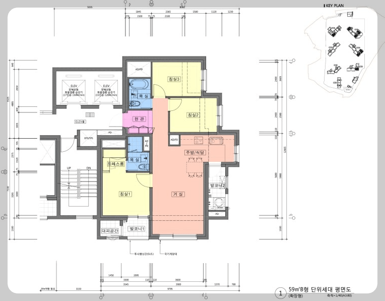
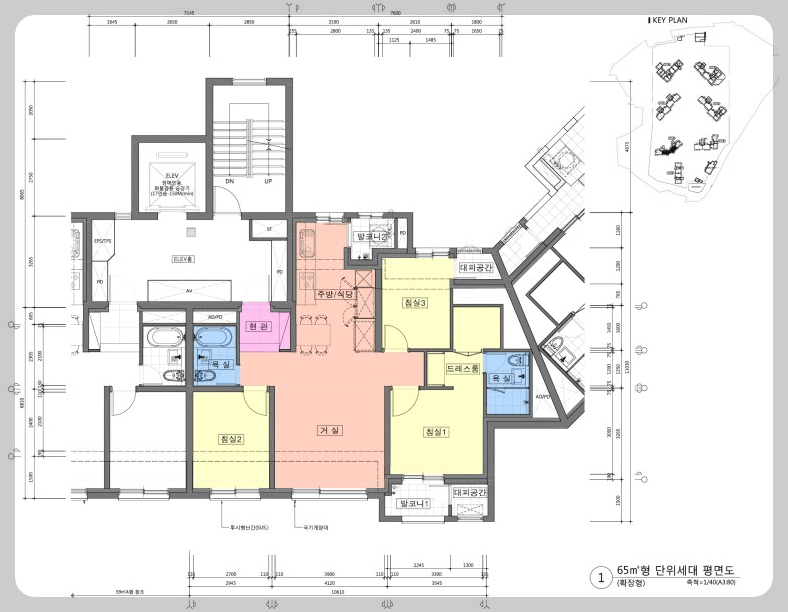
라체르보 푸르지오 써밋 분양가 및 평면도
라체르보 푸르지오 써밋 분양가는 미정입니다. 라체르보 푸르지오 써밋의 옆 단지인 '서울숲 리버뷰 자이 아파트'의 전용면적 59㎡의 시세는 약 15억 5,000만원 내외입니다. 같은 면적을 기준으로 이보다 낮은 분양가가 예상됩니다.




라체르보 푸르지오 써밋 견본주택(모델하우스)
라체르보 푸르지오 써밋에 관심이 가는 분들은 견본주택 구경하고 오시면 좋을 것 같습니다.

📌 주소: 서울특별시 강남구 영동대로 337(대치동 968-3)



















